C’arch Architecture + Design
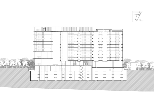
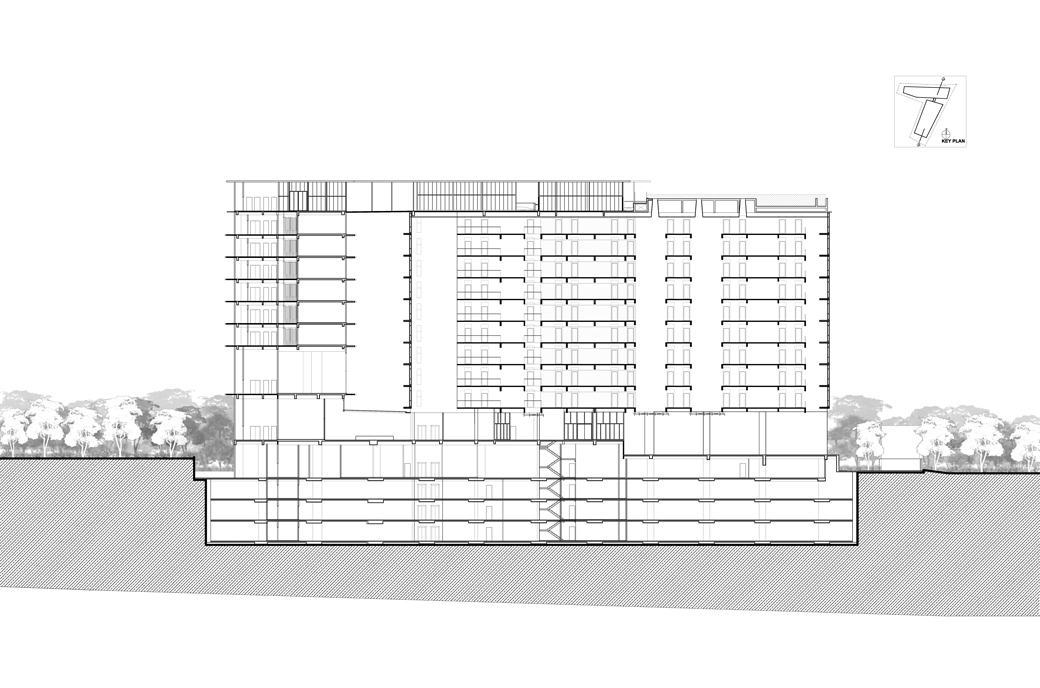
A 11-storey multi-use commercial complex comprising of 2 luxury car showroom/3S centre, serviced apartments units and a boutique hotel with rooftop facilities.
1992-2026 © C'ARCH ARCHITECTURE + DESIGN SDN BHD. SITE BY TNG