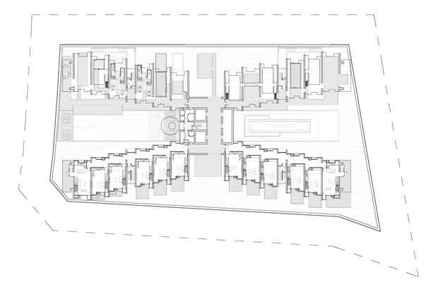
TWY is a 51-storey serviced apartment tower of 484 duplex residences. Its make-up of 600sf, 800sf & 1,400sf compact and fully-fitted urban dwellings enjoy the unique spatial experience made possible by its fully duplex configuration for all units.
The tower is positioned on top of a 0.9 acre self-cleaning bio-filtration pool which forms a waterscape of reeds and wetlands amongst the swimming pools. The rippling surface of this water body not only passively cools but creates a serene, yet dynamic canvas to place communal spaces.
Roof top amenities are set within a composition of raised decks and gardens, designed with 360° panoramic views of the city.
